石家庄银河互感器有限公司
设为首页  加入收藏
 
首页
关于我们
产品中心
技术资讯
典型客户
在线留言
联系我们
1
2
3
  • 大电流互感器
  • >
  • 正文
LYM-0.5型电流互感器
2023/3/16 11:35:51   作者:admin  查看:0 回复: 0

LYM-0.5型电流互感器

 

一、概述

 LYM-0.5型电流互感器为低电压母线式互感器,适用于500伏及以下线路中作电流电能的测量及继电保护之用。例如:

电弧炉、精炼炉、铁合金炉等变压器二次短网(母线)电流的测量。产品结构合理、经久耐用、测量精确。

 

二、结构特点

该产品是由高导磁率的条形硅钢片叠装而成,一次线圈为母线(制造厂不供母线)二次线圈分成串联的两段排列在铁心

窗口的四周,在互感器的上方贴有产品铭牌,底座上铆有k1k2字母标志牌,并配备有接线柱接线简洁方便。同时底座

上具有安装孔,以便于用户安装!

 

三、使用条件

1海拔高度不超过1000米。

2环境温度-35℃+40℃

3相对湿度<85%(20℃)

4安装场所应无严重影响电流互感器绝缘的气体、蒸汽、化学性沉积、灰尘、污垢及爆炸性和浸蚀性介质。

5安装场所应无严重震动及颠簸。

 

四、 LYM-0.5型电流互感器技术参数

 

  1 型号含义


 

2、主要技术数据

  

 

序号

 

 

 

 

额定电压

(千伏)

额定电流比

(安)

额定二次负荷(欧姆)

准确

等级

饱和

倍数

 

备注

 

1

 

 

 

 

 

LYM-0.5

 

 

 

 

 

0.5

1000/5

 

 

0.8

 

 

 

0.5

 

10

互感器窗口尺寸可根据设计图纸提供的短网尺寸    额定电流或厂家要求制作!

2

2000/5

3

3000/5

4

4000/5

5

7500/5

 

 

2

5

6

10000/5

 

 

0.3

7

15000/5

 

 

3

 

8

20000/5

9

25000/5

10

30000/5

0.5

 

11

35000/5

 

 

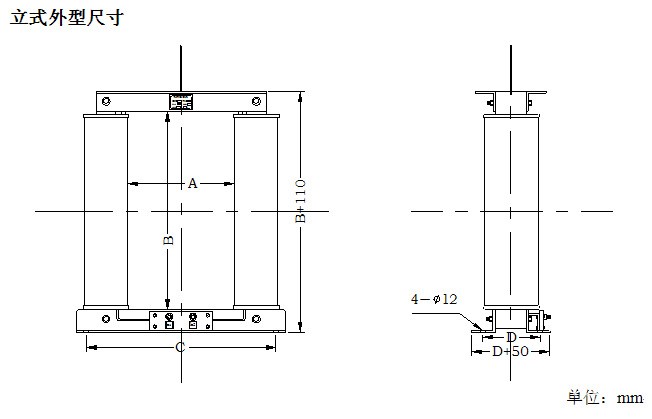
五、 LYM—0.5型型电流互感器外型尺寸图

 

 

额定电流(A)

A

B

C

D

(7500)10000

120

250

220

135

15000

120

350

220

135

20000

140

460

240

135

25000

200

600

300

135

30000(35000)

260

600

360

145

 

额定电流(A)

A

B

H

(7500)10000

120

250

280

15000

120

350

280

20000

140

460

290

25000

200

600

320

30000(35000)

260

600

350

  

注:由于用户现场的短网(母排)尺寸的不统一本外形尺寸仅供参考,为了测量的精确和安全建议用户根据短网(母线)

的实际尺寸定作互感器!

 

六、安装注意事项: 
安装时先选择好互感器安装位置(远离热源),用不锈钢等非导磁材料做支架固定在墙上或焊接在短网托梁上,位置应保证

互感器安装后,短网处于互感器几何中心位置,固定互感器时不能使任何导体环绕铁心形成回路,否则将产生大电流将其烧

毁。由于互感器重量较大,安装时注意安全。不要用绳子或杠子抬互感器的线圈处,防止线圈断路或损坏。电流标记朝向

短网电流进向,装到支架上用不锈钢螺丝固定。互感器工作时K1K2不能开路。否则次级会产生高压造成设备损坏,最好

将其接线柱两端并联一个保护电阻防止因开路烧毁设备。

暂无记录
记录数:0
帐号: | 个人设置 | 安全退出
Copyright © 2016-2023 石家庄银河互感器有限公司(C)版权所有  ICP备案编号:冀ICP备06026399号-1  技术支持:快网建站CMS